大通g50改床车,原车二排座椅改向前放平
1 10 发布于 辽宁 2025-11-19 10:53:50 只看楼主 热门标准
点击查看热门标准,热门算法维度通过账号健康度、浏览、评论、点赞、收藏、转发、反作弊等进行综合评判
修改帖子
现在g50改装床车最常见的方案是中排改旋转座椅,我也不例外……改了!

旋转后也不是寸平


前后移动的把手高于饰板


结果发现座椅旋转的时候座椅边饰板蹭底下调节座椅前后移动的金属把手,而且座椅变高老人上下车不方便,人坐上去也不是很稳,(据了解有人已经坐变形了)旋转后,二三排形成对卡座无法坐人腿部空间不够,脚必须插到对方裤裆中挺尴尬,座椅旋转后椅背占空间,长度只有1.8米,而且不是寸平,果断退货了!
后来研究发现如果把二排座椅向前放平那大大的节省空间,床车拉货都方便!



首先把座椅椅背向前的限位器给切割(向后的限位器不用割)。


然后把椅背向前放,放不平,是因为椅背和座椅之间的高度不够,那就加两块钢板加高就能实现,


加钢板后效果!


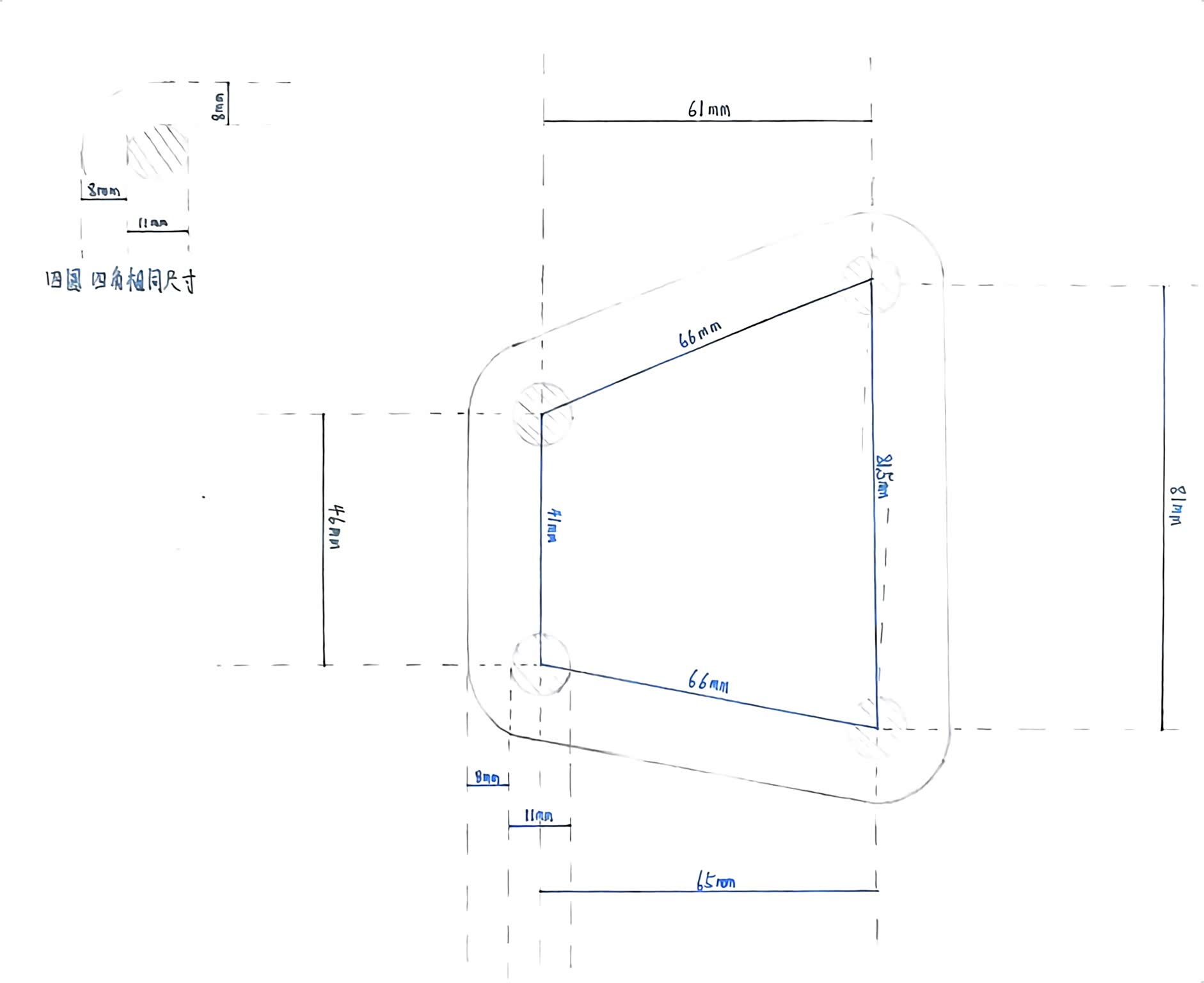
经过测量尺寸,(图纸尺寸见图)选用3.5毫米厚钢板,这里要注意打孔的孔距一定要准确,否则安装不上,如果您有动手的能力,可以自己做,一定要注意安全,角磨机切割钢板不是闹着玩的!如果自己做不了,就去多多家找卖钢板的有的可以加工。






安装钢板就很简单,自己买八套十号的螺丝🔩,按图安装就可以,椅背增高后,调节椅背角度的线就不够长,找根铁丝像图片上红色标注的固定在孔上就可以


用铁丝固定这眼里


调节椅背角度把手

接着安装座椅饰板,你会发现座椅调角器的发条会裸露在上面,这是没有办法的,直接喷上黑色漆,其实也不太明显,(建义的慎改),安装饰板正好卡在发条的侧面,裁剪饰板后会很板正,我没有裁剪饰板了,也不影响调角器的功能(不想破坏饰板)



接下来把座椅安装到车上,把二排三排放倒后你会发现二排会比三排高大概四厘米,找两块四厘米厚的松木板把另一面给削薄止五毫米厚形成个斜坡固定到三排的椅背后面,买个椅套套上就ok了,这样后备箱就不用增高。如果闲弄木板麻烦可以去找块做外墙保温泡沫板垫里面也可以!经过测试,二三排放平后有一点小斜坡(如果把二排和后备箱都增高四厘米就是纯平的效果)躺在上面斜坡感觉不明显。



放平后不用拿掉二排座椅的头枕,主副驾驶座位正常使用不影响乘坐空间(不影响开车)不得不说g50空间真大,二排两个独立座椅之间和二排三排之间都有缝隙可以到多多家买两块缝隙板,上面有自带的魔术贴正好固定到一起实现大床!毛毡木板很轻可折叠不平常放车里不占空间!





从二排座椅的头枕到后备箱的长度2.2米不算头枕的长度2米,高度86~90厘米,身高1.75的人坐在里面正好,伸直腰坐还是会顶头,正常坐着不会!这样看起来床大了不少,拉货也会很方便




我的想法,变床的过程一定要简单,在你临时或自驾游要休息,直接放倒椅背就能变床不需要找平啊垫东西啊,弄充气床垫啊,每次都麻烦要死了,到后来都不想出去玩了,一定要简单!纯手工画的图纸不知道大家能不能看懂,不懂可以留言!大家有更好的方案可以提出来,大家一起分享!注意本车是2024款大通g50手A织布座椅,其他版本不知道座椅是不是相同结构!



最后对比下改旋转座椅和向前放平座椅的空间!


当初看中现代的库斯图和大通g50都可以这样实现二排座椅向前放平形成大床的优势,想还想去库斯图的价格能买两台g50了,平常就是代步车,所以还是选g50,动力空间都不错。等有时间跟大家分享下改装二排车载小桌板教程!

  • 车辆改装
最后编辑于2025-11-19 11:32:46
很抱歉,该主帖尚未满足精华帖15张图片要求,不能予以精华,更多精华标准点击此处查看
修改主帖
内容系网友发布,涉及安全和抄袭问题属于网友个人行为,不代表汽车之家观点,可联系客服删除。
举报
IP
回复
共1页
1
20条/页 前往

更多> 精选帖子

更多> 精选视频

扫码下载
汽车之家APP

随时获取
最新汽车资讯